1/8 Maple Street 'Riverside Centre', Maleny, QLD 4552

Maleny

CONTACT AGENT

COMMERCIAL GEM IN MALENY

This is your opportunity to secure a prime commercial property in the heart of Maleny.

Located in the bustling Riverside Centre complex, and surrounded by quality businesses, here is your opportunity to secure a tightly held property.

The Riverside Centre is situated on the main street of Maleny and offers great signage and is a drawcard for passing traffic-it's the first commercial site seen upon entry to Maleny.

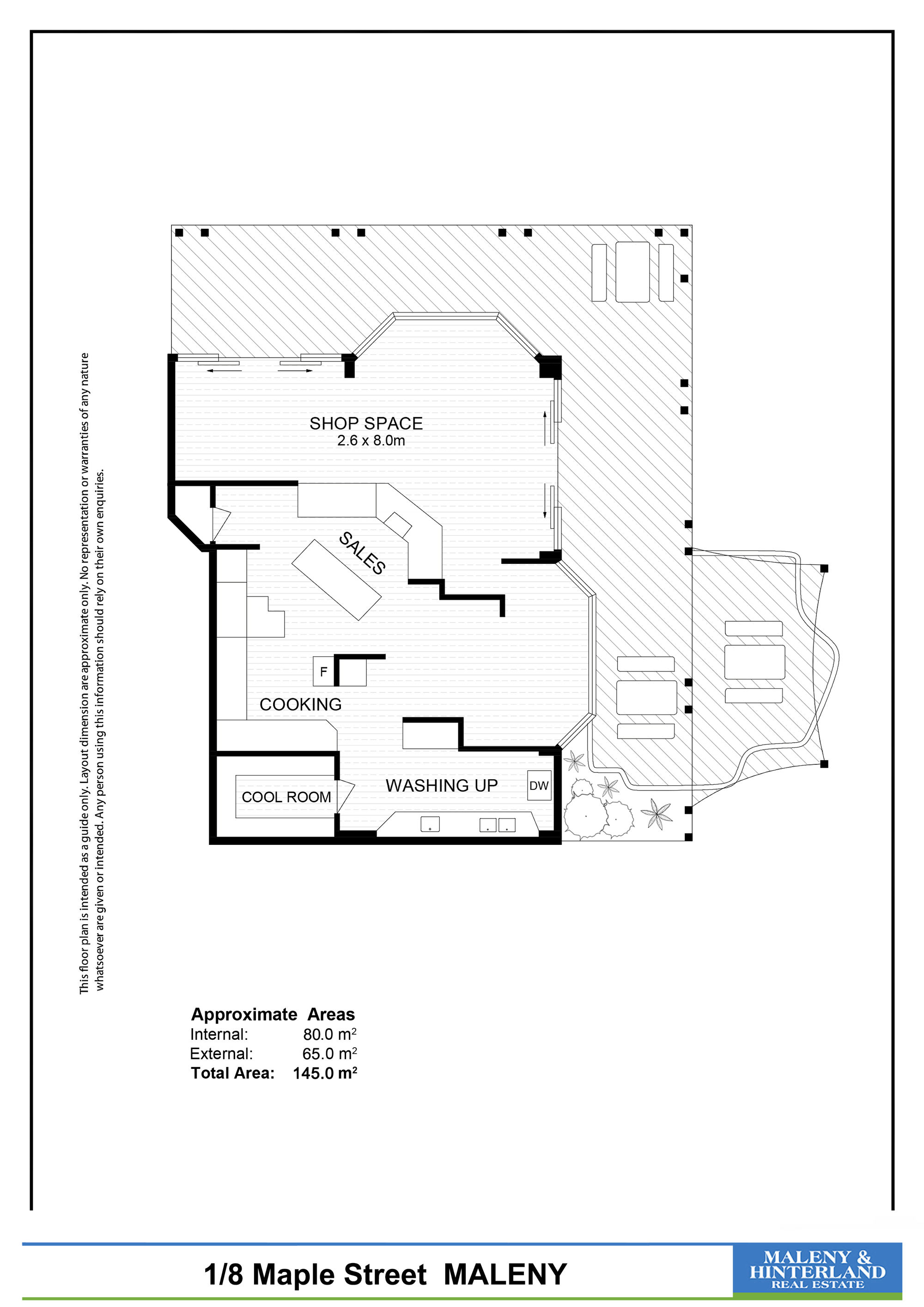
• Prime position 84m2 site
• Boasting good onsite parking
• Consistent passing traffic
• Great window frontage and exposure
• Long term tenant - Blue Marlin Takeaway established for over 30 years
• Prominent corner position with exclusive use areas

This property will not last long, please contact for additional information.

* Inspections for this property are strictly by private appointment only.
Please respect the peace and quiet of our very important neighbours and do not enter the property grounds without being accompanied by an agent.

** All information contained herein is gathered from sources we believe to be reliable. However, we cannot guarantee its accuracy and interested persons should rely on their own enquiries.

*** This property is being marketed without a price and therefore a price guide cannot be provided. The website may have filtered the property into a price bracket for website functionality purposes. Please contact Agent for further guidance on price.

Property Links

Location

Property Snapshot

Property Features

Property ID 21553936

Building Size 84 Square Mtr approx.

Rates 4928.52 Annually

Property Contact

Your Details
Your Enquiry
  1. Please describe how we can be of assistance to you.

  2.  

    Would you like to join our mail list?

Submit